×关闭

×关闭

精彩词条

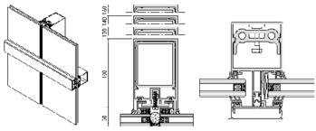
构件式半隐框玻璃幕墙

补充:0  浏览:13762  发布时间:2012-5-14
 

   构件式幕墙:
框架式幕墙(亦称构元件式幕墙)是将在车间内加工完成的幕墙构件(立柱、横梁、面板等)运到工地,按照一定的施工工艺将幕墙立柱通过转接件逐一安装到主体结构上,然后安装横梁、面板玻璃,最终完成整个幕墙安装的幕墙形式。框架式幕墙从外视效果上可分为明框幕墙、半隐框幕墙(横隐、竖隐)、全隐框幕墙。框架式幕墙以其优良的性价比,在建筑幕墙市场受到广泛的应用。
    产品特点:
1、良好的气密、水密及抗震性能。、
2、压块式连接与型材钩槽连接相结合,安全可靠。
3、采用弹性连接,有效防止伸缩变形产生的噪音。
4、可实现任何形状的建筑幕墙效果
5、安装简单,拆卸方便,维护简单。

其他补充

我来补充: 回答即可得分。若被选为最佳答案,您可获得更多奖励分。 马上登录 没帐号?马上注册

  注册登录后回答,赢取积分!

点击刷新验证码

 
4734 词条
  NOBODY发布的更多词条
  相关词条